
Is cuid ríthábhachtach de chóras draenála dín an fhoirgnimh iad gáitéir struchtúir chruach. Is í an phríomhfheidhm atá acu ná uisce báistí a bhailiú ón díon, é a threorú isteach i bpíopaí ingearacha, agus ansin é a urscaoileadh chuig an gcóras draenála lasmuigh, ag cur cosc air ballaí nó fondúireachtaí maotáilte a ídiú go díreach. Tá dearadh agus suiteáil táirgí Liweiyuan tréithrithe ag ard -neart agus meáchan éadrom, ag cinntiú draenáil réidh agus marthanacht eisceachtúil.
Is cuid ríthábhachtach de chóras draenála dín an fhoirgnimh iad gáitéir struchtúir chruach. Is í an phríomhfheidhm atá acu ná uisce báistí a bhailiú ón díon, é a threorú isteach i bpíopaí ingearacha, agus ansin é a urscaoileadh chuig an gcóras draenála lasmuigh, ag cur cosc air ballaí nó fondúireachtaí maotáilte a ídiú go díreach. Tá dearadh agus suiteáil táirgí Liweiyuan tréithrithe ag ard -neart agus meáchan éadrom, ag cinntiú draenáil réidh agus marthanacht eisceachtúil.
Déantar gáitéar struchtúr cruach Liweiyuan as ábhair atá frithsheasmhach in aghaidh creimthe agus frithsheasmhach in aghaidh tionchair.
Is é ár dtáirge ná galbhánú-snámh te, ag tairiscint friotaíocht creimthe den scoth, costas íseal, agus saol fada seirbhíse. Ar fáil i dtiúsanna 1.5-2.5 mm, tá sé oiriúnach don chuid is mó d'iarratais.
Déanta as cruach dhosmálta, cuireann an táirge seo friotaíocht creimthe ar fáil agus tá sé an -oiriúnach do thimpeallachtaí cósta nó tais. Ar fáil i dtiúsanna 1.0-2.0 mm, cuireann sé praghas níos airde ar fáil ach saol fada seirbhíse.
Tá ár dtáirgí cruach atá brataithe le dath bunaithe ar chruach galbhánaithe, atá brataithe le sciath atá frithsheasmhach in aimsir, mar shampla poileistear nó florocarbon, le haghaidh friotaíochta creimthe agus éifeachtaí maisiúla. Ar fáil i dtiúsanna 1.2-2.0 mm, tá siad oiriúnach do fhoirgnimh a dteastaíonn ardleibhéal achomhairc aeistéitiúla uathu.
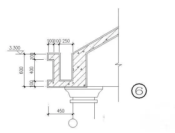
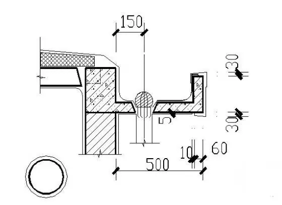
Ní mór foirm struchtúrach an gháitéir struchtúir chruach a oiriúnú do fhána an dín agus don dearadh sceimhleacha. I measc na gcineálacha coitianta tá U-chruthach agus cruth V. Seo a leanas an próiseas suiteála:
Baineann ár ngáitíní struchtúir cruach úsáid as lúibíní gáitéir chruach uillinne chun iad a dhaingniú chuig bíomaí nó purlins an struchtúir chruach. Is é an spásáil lúibín ná 600-1000mm chun a chinntiú go mbeidh dáileadh struis fiú ar fud an gháitéir.
Tá na gáitéir chríochnaithe réamhdhéanta agus nasctha ar an láthair ag úsáid cónascairí nó táthú. Tá gá le shéalaithe ag an acomhal idir an gáitéar agus an decking díon.
Is féidir linn splancadh os cionn an dín a shuiteáil. Ba chóir an taobh íochtarach den gháitéar a chur faoi bhun an dín agus séalaithe le shéalaithe. Ba chóir poill draein a sholáthar ag bun an gháitéir, go príomha chun nasc a dhéanamh le h -ardaitheoirí uisce báistí.
Cuimsíonn ár bpróiseas monaraíochta gáitéir chruach na gcruach gearradh de réir na dtoisí líníochta, lúbadh, péinteáil, cigireacht táirgí críochnaithe, pacáistiú, agus loingseoireacht. Tá gáitéir struchtúr cruach Liweiyuan deartha agus suiteáilte chun friotaíocht creimthe, draenáil réidh, agus marthanacht a chinntiú, ag cinntiú draenáil éifeachtach.